2011/11/30

人工大理石カラーシンク グランデラ

 

人工大理石シンク グランデラ

艶やかな輝き、なめらかな肌触り、全て人工大理石で創りました。シンク・カウンターとも上質さにこだわったマット仕上げ。
高級感のあるグラニット(岩石)調の人工大理石(ポリエステル系)です。
シンク4色、カウンター3色からお選びいただきます。
自由に組み合わせ、カラーコーディネートを楽しめます。耐熱性に優れ、衝撃にも強い、汚れてもサッと拭くだけのお手入れ簡単仕様です。
外形寸法W600 x D535 x H204mm
内形寸法W550 x D415 x H190mm
製品重量 スクェアタイプ:7.9kg ラウンドタイプ:7.3kg 

この商品のお問合せ

人大シンク「グランデラ」で貴方だけのカラーリングを!


グランデラ 2タイプ4カラー
スクェアタイプ(意匠登録第1301406号)

grande-w.jpg grande_p.jpg grande_o.jpg grande_g.jpg
グランデラシンク ホワイト グランデラシンク ピンク グランデラシンク オレンジ グランデラシンク グリーン
グランデラホワイト グランデラピンク グランデラオレンジ グランデラグリーン

ラウンドタイプ(意匠登録第1301405号)

grande_r_w.jpg grande_r_p.jpg grandera_r_o.jpg grandera_r_g.jpg
グランデラホワイト グランデラピンク グランデラオレンジ グランデラグリーン

グランデラ 概要

グランデラ特徴・規格
  • シンク・カウンターとも上質さにこだわったマット仕上です。
  • 高級感のあるグラニット調の人工大理石(ポリエステル系)。
  • シンク4色、カウンター3色からお選びいただきます。自由に組み合わせ、カラーコーディネートを楽しめます。
  • 耐熱性に優れ、衝撃にも強い、汚れてもサッと拭くだけのお手入れ簡単仕様です。
  • 外形寸法W600 x D535 x H204mm
  • 内形寸法W550 x D415 x H190mm
  • 製品重量 スクェアタイプ:7.9kg ラウンドタイプ:7.3kg【トヨウラ製】

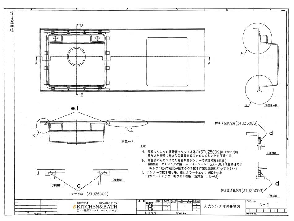
グランデラシンクの取り付け方法

  • 天板にシンク圧締用の受け板及びクリップ本体①(3TUZ5009)を接着する
  • シンクのフランジ溝に接着剤を塗布する(全周) 接着剤はセメダイン社製:スーパーシール(SX-001)※1 SX-001商品情報・お買い求めはこちらからどうぞ(楽天リンク)
  • シンクを天板に接着する。
  • 天板にシンクを接着後クリップ本体①(3TUZ5009)にクサビ②を打ち込み同時に押え金具Sをビス止めしてシンクを圧締する。
  • 接合部からのハミ出た接着剤をシンナーで拭き取る(全周)
  • (接着剤 セメダイン社製 スーパーシールSX-001は遅効性ではあるが10分で硬化が始まるので拭き作業は迅速に行ってください。)
  • シンナーで拭き取り後、更にカラーチェックで拭き仕上

参考図面

(画像をクリックすると拡大表示されます)


 

GRSNDE_torituke1.jpg


 

GRSNDE_torituke2.jpg

詳細画像

人工大理石シンクグランデラ スクェアタイプ 人工大理石シンクグランデラ スクェアタイプ ピンク 人工大理石シンクグランデラ スクェアタイプ ホワイト

{/tabs}

基本物性・耐汚染性

基本物性

基本物性

試験項目 試験方法 単位 グランデラ

ホワイト
比重 JIS K 6911 5.28 に準拠 1.75
曲げ強さ JIS K 6911 5.17 に準拠 MPa

44.0

引き貼り強さ JIS K 6911 5.18 に準拠 間口 MPa

24.1

シャルピー衝撃強さ JIS K 6911 5.20 に準拠 KJ/㎡

25.3

バーコル硬度 JIS K 6911 5.16.2 に準拠  53
鉛筆硬度 JIS K 5400 8.4.1 に準拠 5H
急冷試験 試料オーブン中にて100℃まで加熱した後

0℃まで急冷化粧面の変化の有無
 
耐煮沸試験 JIS K 6911 5.20 に準拠 

92℃X24Hr
化粧変化

水の変化


耐衝撃性(1) 198gの鋼球を45cmの高さより自然落下

させ化粧面に生じた割れ・ひびの有無
 
耐衝撃性(2) 1kgの鋼球を自然落下させ化粧面に

割れ・ひびの生じない最大の高さ
cm 150cm以上
吸水率 JIS K 6911 5.26 に準拠 0.06
荷重たわみ温度 JIS K 6911 5.35.1 に準拠

曲げ応力は1.81MPa


 
221.5

 
耐シガレット性 JIS K 6902 付属書 17に準拠 淡黄
耐磨耗性 JIS A 5209 7.8に準拠 0.03
耐熱性 JIS K 6902 4.5に準拠 

オイルパン250℃ 20分
 

熱膨張係数 JIS K 6911 5.25に準拠 /℃ 2.10E-05
耐候性 JIS K 6902 付属書 16に準拠

スガ試験機(株)製

試験時間:200Hr
△E(ab)

100Hr

200Hr

3.44

7.15

耐汚染性

耐汚染性能試験結果

【食料・調味料】 
1.清掃な布で完全に除去可能。

2.水洗いで除去可能。

3.中性洗剤で除去可能。

4.ラッカーシンナーで除去可能。

5.クレンザーで除去可能。

6.強い変化、容易に除去可能。

尚、汚染材料の接触時間は24時間とする
 コーヒー 2
 ソース 2
 醤油 1
 カレー粉 2
 トマトケチャップ 2
 食酢 2
 ウイスキー 2
【家庭用品】  
 キッチンハイター 2
 マジックリン 1
 カビトリハイター 1
 シンク廻りクリーナ 1
【文房具類】  
 油性マジック 4
 クレヨン 4
【化粧品】  
 ヘアリキッド 1
 マニキュア 4
 口紅 1
 髪染め 5
 ヘアートニック 1
 マニキュアリムーバー 1
【化学薬品類】      JIS K 6902 4.5に準拠 

| ○変化なし | △軽微な変化 | ×強い変化 | カバー有 |
 10%クエン酸水溶液
 10%アンモニア水
 5%水酸化ナトリウム         ×
 5%塩酸      
 10%炭酸ナトリウム
 シンナー ×

シームレスマウント対応人工大理石

「ハイパーシンク」は下の人工大理石トップとシームレスマウントが可能です。

BMCカウンターでリーズナブルにシームレス シート(板)から作り特殊形状でもコストダウン


対応人工大理石はお問合せください。

一般的なシステムキッチンメーカーやマンション等大型物件に使用されている人工大理石ワークトップで、キッチンのコストダウンが可能です。
対応人工大理石はお問合せください。

まだまだあります。人工大理石シンク&カウンター(アクリル系) 

人工大理石シンクGB 人工大理石シンクSB 人工大理石シンク I
人工大理石シンク シームレスマウント GB 人工大理石シンク シームレスマウント SB 人工大理石カラーシンク ホワイト i-series sink

ワークトップカウンターとカラーシンクをシームレスで製作します!

人工大理石シームレスシンク&トップの製作 格安セール開催7月30日まで

人工大理石カラーシンク:グランデラカタログです。

ショップで価格チェック

0 件のコメント:

コメントを投稿